Перейти к содержимому (Нажмите Enter)

Распределитель воды по стеклу Astral Glassfall 4150

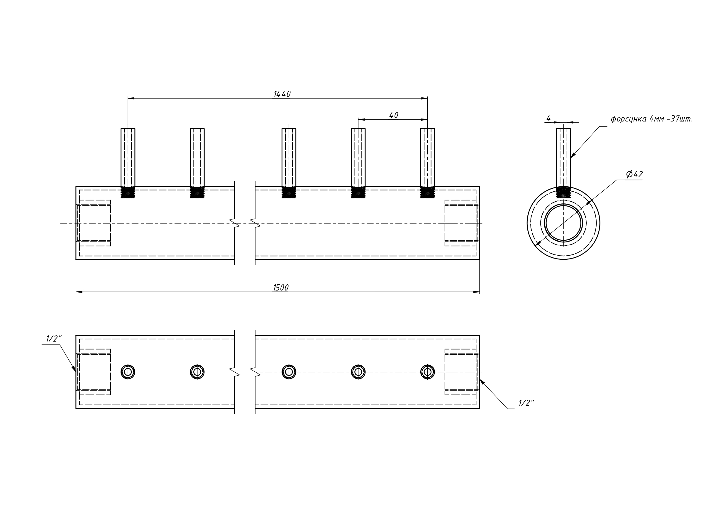
Характеристики
  • Водная картина
    водопад
  • Присоединение
    2*½" (внутр. резьба)
  • Выходное отверстие
    37*4мм
  • Размеры (Д x Ø)
    150 х 42 мм
  • Высота струи min – max
    0,5 - 3,0 м
  • Расход
    68 л/мин
  • Напор
    1,5 м
  • Ширина стекла min
    149 см
  • Зависимость от уровня воды
    нет
  • Материал
    нержавеющая сталь AISI 304
Арт.: AAD-RWP-4150
Цена: 42 250
Общее описание

Водопад по стеклу — это универсальное решение как для интерьерных фонтанов, благодаря бесшумной работе, так и для уличных фонтанов, благодаря высокой ветроустойчивость. Такой фонтан несложно установить в качестве украшения помещений и вертикальных садов. Струи воды скользят вдоль стекла слоями и наплывами, образуя волны. С подсветкой фонтан по стеклу смотрится особенно привлекательно.

Наша компания для такого фонтана разработала несколько базовых решений по распределителю воды в зависимости от ширины и высоты падения. По запросу возможно изготовить не только прямой распределитель, но и кольцевой, овальный или другой сложной формы в зависимости от задумки дизайнера, архитектора или пожеланий заказчика.