Перейти к содержимому (Нажмите Enter)
Поиск
Найти
Найти
info@astral-aquadesign.ru
Москва
(495) 795-00-17
Rus
Eng
Deu
Поиск
Наши работы
Оборудование
Проекты фонтанов
Услуги
Контакты
Подбор фонтанов
Этапы работы
Производители
Новинки
Распродажа
ФОНТАНЫ
ВОДОЕМЫ
СВЕТ
Фитинги
Муфта резиновая
Переход резиновый
Угол 90° резиновый
Тройник резиновый
Заглушка резиновая
Фланцы прижимные
Задвижки
Ниппели и муфты
Футорки и переходники
Углы 90° и тройники
Штуцер прямой
Штуцер с углом
Коннекторы, гайки и краны
Регуляторы потока
Фитинги
>
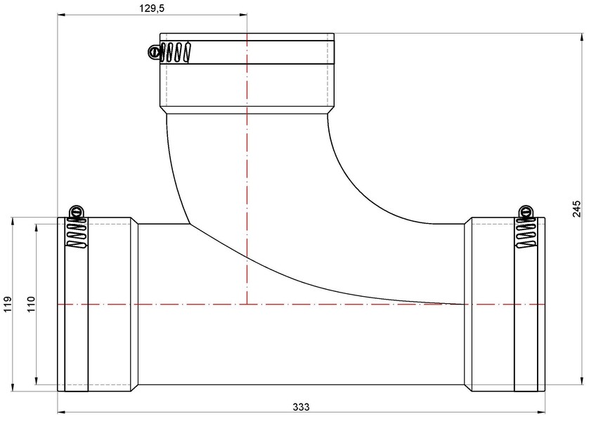
Тройник резиновый
Тройник резиновый соединения трубопроводов прудового оборудования, 4", Ø110мм
Характеристики
Диаметр труб
100 ... 110 мм
Материал
ПВХ эластомер
Сертификат
Арт.:
FC158
Цена:
3 730
₽
Чертёж